phone
Sprzedaż mieszkań 85 74 15 087  |  mieszkania@kombinatbud.pl
◂ Strona Główna / Inwestycje / Przy Kochanowskiego / Jana Kochanowskiego lok. 2

Jana Kochanowskiego lok. 2

708 100 PLN

Historia cen

12 533 PLN/m²

Białystok, Jana Kochanowskiego

Odbiór lokalu: listopad 2026

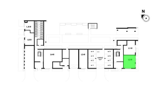
Metraż 56,50 m²
Piętro Parter

O inwestycji

Przy Kochanowskiego to nowoczesna inwestycja położona na popularnym i świetnie skomunikowanym osiedlu Przydworcowe w Białymstoku. W bezpośrednim sąsiedztwie znajduje się Politechnika Białostocka wraz z pełną infrastrukturą akademicką, a do Rynku Kościuszki i białostockiego Ratusza jest niespełna 2 km.


Projekt obejmuje sześciokondygnacyjny budynek o starannie zaprojektowanej architekturze, z dużym dziedzińcem wewnętrznym, dekoracyjną zielenią i nastrojowym oświetleniem. Wysoka jakość wykończenia części wspólnych oraz zróżnicowana oferta mieszkań sprawiają, że każdy znajdzie tu przestrzeń dopasowaną do swoich potrzeb.

Pokaż inwestycje
Przy Kochanowskiego

Lokalizacja

  • 800 m do Politechniki Białostockiej i infrastruktury akademickiej,
  • 2 km do Rynku Kościuszki w centrum Białegostoku,
  • Ulica Jana Kochanowskiego – odchodząca od popularnej ul. Bema w Białymstoku.

Zadzwoń 85 741 50 87 lub uzupełnij formularz, a skontaktujemy się z Tobą

Wypełnienie formularza oznacza, że podane w nim dane osobowe będą przetwarzane w celu nawiązania kontaktu i udzielenia odpowiedzi na zadane pytanie. Zasady przetwarzania danych i informacje o administratorze znajdziesz w polityce prywatności.

Wysyłam...