phone
Sprzedaż mieszkań 85 74 15 087  |  mieszkania@kombinatbud.pl
◂ Strona Główna / Inwestycje / Osiedle Rytm / Klepacka budynek 2 m. 4

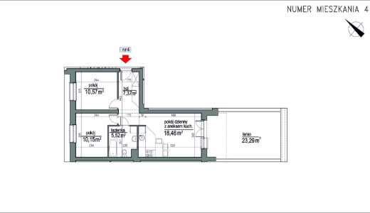
Klepacka budynek 2 m. 4

442 600 PLN

Historia cen

8 500 PLN/m²

Pomieszczenia przynależne:

Komórka lokatorska nr 4: (w cenie)
Białystok, Klepacka budynek 2

Odbiór mieszkania: sierpień 2026

Metraż 52,07 m²
Liczba pokoi w mieszkaniu: 3
Piętro Parter
Komórka lokatorska w cenie mieszkania

O inwestycji

Osiedle Rytm położone jest w bezpośrednim sąsiedztwie Lasu Turczyńskiego. Entuzjastom wypoczynku na świeżym powietrzu oferuje dostęp do licznych tras rowerowych oraz biegowych. Bliskość tras przelotowych i komunikacji miejskiej sprawia, że mieszkańcy mają możliwość szybkiego i sprawnego dojazdu do centrum.


Niewysokie, kameralne budynki Osiedla Rytm wpisują się w charakter dzielnicy, a geometryczne, przestronne balkony, loggie i tarasy otwierają lokale na okoliczną naturę. Zróżnicowana oferta sprawia, że każdy może tu znaleźć swoje nowe mieszkanie.

Pokaż inwestycje
Osiedle Rytm

Lokalizacja

  • osiedle Starosielce, ulica Klepacka w Białymstoku,
  • w sąsiedztwie Lasu Turczyńskiego,
  • 5,6 km od Rynku Kościuszki w centrum miasta.
lokal dostępny
lokal zarezerwowany, prosimy o kontakt z działem sprzedaży

Inne mieszkania

Adres
Piętro
Pokoje
Pow Powierzchnia
Cena brutto
Status
Klepacka budynek 1 m. 19 Piętro I 3 53,24 m2
420 600 PLN
428 600 PLN
Historia cen
Dostępne
Ładowanie planów...
Ładowanie obrazu...
Cena/m²
7 900 PLN
Rodzaj
Mieszkanie
Status
Dostępne
Odbiór do
31.08.2026
Najniższa cena z 30 dni przed obniżką:
428 600 PLN
Pomieszczenia przynależne
Komórka lokatorska nr 19: kom. nr 19: (w cenie)
Klepacka budynek 1 m. 21 Piętro I 3 51,56 m2
407 300 PLN
422 800 PLN
Historia cen
Dostępne
Ładowanie planów...
Ładowanie obrazu...
Cena/m²
7 900 PLN
Rodzaj
Mieszkanie
Status
Dostępne
Odbiór do
31.08.2026
Najniższa cena z 30 dni przed obniżką:
422 800 PLN
Pomieszczenia przynależne
Komórka lokatorska nr 21: kom. nr 21: (w cenie)
Klepacka budynek 1 m. 24 Piętro II 3 51,46 m2
396 200 PLN
416 800 PLN
Historia cen
Dostępne
Ładowanie planów...
Ładowanie obrazu...
Cena/m²
7 699 PLN
Rodzaj
Mieszkanie
Status
Dostępne
Odbiór do
31.08.2026
Najniższa cena z 30 dni przed obniżką:
416 800 PLN
Pomieszczenia przynależne
Komórka lokatorska nr 24: kom. nr 24: (w cenie)
Klepacka budynek 1 m. 25 Piętro III 3 53,08 m2
403 400 PLN
411 400 PLN
Historia cen
Dostępne
Ładowanie planów...
Ładowanie obrazu...
Cena/m²
7 600 PLN
Rodzaj
Mieszkanie
Status
Dostępne
Odbiór do
31.08.2026
Najniższa cena z 30 dni przed obniżką:
411 400 PLN
Pomieszczenia przynależne
Komórka lokatorska nr 25: kom. nr 25: (w cenie)
Klepacka budynek 1 m. 27 Piętro III 3 51,36 m2
390 300 PLN
413 400 PLN
Historia cen
Dostępne
Ładowanie planów...
Ładowanie obrazu...
Cena/m²
7 599 PLN
Rodzaj
Mieszkanie
Status
Dostępne
Odbiór do
31.08.2026
Najniższa cena z 30 dni przed obniżką:
413 400 PLN
Pomieszczenia przynależne
Komórka lokatorska nr 27: kom. nr 27: (w cenie)
Klepacka budynek 1 m. 28 Piętro I 3 52,07 m2
411 400 PLN
427 000 PLN
Historia cen
Dostępne
Ładowanie planów...
Ładowanie obrazu...
Cena/m²
7 901 PLN
Rodzaj
Mieszkanie
Status
Dostępne
Odbiór do
31.08.2026
Najniższa cena z 30 dni przed obniżką:
427 000 PLN
Pomieszczenia przynależne
Komórka lokatorska nr 28: kom. nr 28: (w cenie)
Klepacka budynek 1 m. 31 Piętro I 3 52,07 m2
411 400 PLN
427 000 PLN
Historia cen
Dostępne
Ładowanie planów...
Ładowanie obrazu...
Cena/m²
7 901 PLN
Rodzaj
Mieszkanie
Status
Dostępne
Odbiór do
31.08.2026
Najniższa cena z 30 dni przed obniżką:
427 000 PLN
Pomieszczenia przynależne
Komórka lokatorska nr 31: kom. nr 31: (w cenie)
Klepacka budynek 1 m. 32 Piętro II 3 51,97 m2
400 200 PLN
421 000 PLN
Historia cen
Dostępne
Ładowanie planów...
Ładowanie obrazu...
Cena/m²
7 701 PLN
Rodzaj
Mieszkanie
Status
Dostępne
Odbiór do
31.08.2026
Najniższa cena z 30 dni przed obniżką:
421 000 PLN
Pomieszczenia przynależne
Komórka lokatorska nr 32: kom. nr 32: (w cenie)
Klepacka budynek 1 m. 35 Piętro II 3 51,97 m2
400 200 PLN
421 000 PLN
Historia cen
Dostępne
Ładowanie planów...
Ładowanie obrazu...
Cena/m²
7 701 PLN
Rodzaj
Mieszkanie
Status
Dostępne
Odbiór do
31.08.2026
Najniższa cena z 30 dni przed obniżką:
421 000 PLN
Pomieszczenia przynależne
Komórka lokatorska nr 35: kom. nr 35: (w cenie)
Klepacka budynek 1 m. 36 Piętro III 3 51,88 m2
394 300 PLN
409 900 PLN
Historia cen
Dostępne
Ładowanie planów...
Ładowanie obrazu...
Cena/m²
7 600 PLN
Rodzaj
Mieszkanie
Status
Dostępne
Odbiór do
31.08.2026
Najniższa cena z 30 dni przed obniżką:
409 900 PLN
Pomieszczenia przynależne
Komórka lokatorska nr 36: kom. nr 36: (w cenie)
Klepacka budynek 1 m. 39 Piętro III 3 51,88 m2
394 300 PLN
409 900 PLN
Historia cen
Dostępne
Ładowanie planów...
Ładowanie obrazu...
Cena/m²
7 600 PLN
Rodzaj
Mieszkanie
Status
Dostępne
Odbiór do
31.08.2026
Najniższa cena z 30 dni przed obniżką:
409 900 PLN
Pomieszczenia przynależne
Komórka lokatorska nr 39: kom. nr 39: (w cenie)
Klepacka budynek 1 m. 51 Piętro III 3 51,78 m2
397 100 PLN
419 400 PLN
Historia cen
Dostępne
Ładowanie planów...
Ładowanie obrazu...
Cena/m²
7 669 PLN
Rodzaj
Mieszkanie
Status
Dostępne
Odbiór do
31.08.2026
Najniższa cena z 30 dni przed obniżką:
419 400 PLN
Pomieszczenia przynależne
Komórka lokatorska nr 51: kom. nr 51: (w cenie)
Klepacka budynek 2 m. 5 Piętro I 3 51,97 m2
436 500 PLN
Historia cen
Zarezerwowane
Ładowanie planów...
Ładowanie obrazu...
Cena/m²
8 399 PLN
Rodzaj
Mieszkanie
Status
Zarezerwowane
Odbiór do
31.08.2026
Pomieszczenia przynależne
Komórka lokatorska nr 5: kom. nr 5: (w cenie)
Klepacka budynek 2 m. 8 Piętro I 3 51,97 m2
436 500 PLN
Historia cen
Dostępne
Ładowanie planów...
Ładowanie obrazu...
Cena/m²
8 399 PLN
Rodzaj
Mieszkanie
Status
Dostępne
Odbiór do
31.08.2026
Pomieszczenia przynależne
Komórka lokatorska nr 8: kom. nr 8: (w cenie)
Klepacka budynek 2 m. 12 Piętro II 3 51,88 m2
430 600 PLN
Historia cen
Dostępne
Ładowanie planów...
Ładowanie obrazu...
Cena/m²
8 300 PLN
Rodzaj
Mieszkanie
Status
Dostępne
Odbiór do
31.08.2026
Pomieszczenia przynależne
Komórka lokatorska nr 12: kom. nr 12: (w cenie)
Klepacka budynek 2 m. 16 Piętro III 3 51,88 m2
420 200 PLN
Historia cen
Dostępne
Ładowanie planów...
Ładowanie obrazu...
Cena/m²
8 099 PLN
Rodzaj
Mieszkanie
Status
Dostępne
Odbiór do
31.08.2026
Pomieszczenia przynależne
Komórka lokatorska nr 16: kom. nr 16: (w cenie)
Klepacka budynek 2 m. 36 Piętro I 3 50,77 m2
426 500 PLN
Historia cen
Dostępne
Ładowanie planów...
Ładowanie obrazu...
Cena/m²
8 401 PLN
Rodzaj
Mieszkanie
Status
Dostępne
Odbiór do
31.08.2026
Pomieszczenia przynależne
Komórka lokatorska nr 36: kom. nr 36: (w cenie)
Klepacka budynek 2 m. 39 Piętro II 3 50,68 m2
420 600 PLN
Historia cen
Dostępne
Ładowanie planów...
Ładowanie obrazu...
Cena/m²
8 299 PLN
Rodzaj
Mieszkanie
Status
Dostępne
Odbiór do
31.08.2026
Pomieszczenia przynależne
Komórka lokatorska nr 39: kom. nr 39: (w cenie)
Klepacka budynek 2 m. 42 Piętro III 3 50,68 m2
410 500 PLN
Historia cen
Dostępne
Ładowanie planów...
Ładowanie obrazu...
Cena/m²
8 100 PLN
Rodzaj
Mieszkanie
Status
Dostępne
Odbiór do
31.08.2026
Pomieszczenia przynależne
Komórka lokatorska nr 42: kom. nr 42: (w cenie)
Klepacka budynek 3 m. 28 Piętro III 3 51,88 m2
420 200 PLN
Historia cen
Dostępne
Ładowanie planów...
Ładowanie obrazu...
Cena/m²
8 099 PLN
Rodzaj
Mieszkanie
Status
Dostępne
Odbiór do
30.11.2026
Pomieszczenia przynależne
Komórka lokatorska nr 28: kom. nr 28: (w cenie)

Zadzwoń 85 741 50 87 lub uzupełnij formularz, a skontaktujemy się z Tobą

Wypełnienie formularza oznacza, że podane w nim dane osobowe będą przetwarzane w celu nawiązania kontaktu i udzielenia odpowiedzi na zadane pytanie. Zasady przetwarzania danych i informacje o administratorze znajdziesz w polityce prywatności.

Wysyłam...