Osiedle Rytm położone jest w bezpośrednim sąsiedztwie Lasu Turczyńskiego. Entuzjastom wypoczynku na świeżym powietrzu oferuje dostęp do licznych tras rowerowych oraz biegowych. Bliskość tras przelotowych i komunikacji miejskiej sprawia, że mieszkańcy mają możliwość szybkiego i sprawnego dojazdu do centrum.
Niewysokie, kameralne budynki Osiedla Rytm wpisują się w charakter dzielnicy, a geometryczne, przestronne balkony, loggie i tarasy otwierają lokale na okoliczną naturę. Zróżnicowana oferta sprawia, że każdy może tu znaleźć swoje nowe mieszkanie.
Pokaż inwestycje 
                    | 
                            Adres
                         | 
                            Pow
                            Powierzchnia
                         | 
                            Cena brutto
                         | ||||
|---|---|---|---|---|---|---|
| Klepacka budynek 1 m. 19 | 53,24 m2 | 
420 600 PLN | ||||
| 
                                            Ładowanie planów...
                                         
                                            Ładowanie obrazu...
                                         Cena/m² 
                                                        7 900 PLN
                                                                                                 Rodzaj 
                                                Mieszkanie
                                             Status 
                                                Dostępne
                                             Odbiór do 
                                                    31.08.2026
                                                 
                                                    
                                                        Najniższa cena z 30 dni przed obniżką:
                                                    
                                                 
                                                    
                                                        428 600 PLN
                                                    
                                                 
                                                    Pomieszczenia przynależne
                                                 
                                                        
                                                            
                                                                Komórka lokatorska nr 19:
                                                            
                                                            
                                                                kom. nr 19:
                                                            
                                                                (w cenie)
                                                        
                                                 | ||||||
| Klepacka budynek 1 m. 21 | 51,56 m2 | 
407 300 PLN | ||||
| 
                                            Ładowanie planów...
                                         
                                            Ładowanie obrazu...
                                         Cena/m² 
                                                        7 900 PLN
                                                                                                 Rodzaj 
                                                Mieszkanie
                                             Status 
                                                Dostępne
                                             Odbiór do 
                                                    31.08.2026
                                                 
                                                    
                                                        Najniższa cena z 30 dni przed obniżką:
                                                    
                                                 
                                                    
                                                        422 800 PLN
                                                    
                                                 
                                                    Pomieszczenia przynależne
                                                 
                                                        
                                                            
                                                                Komórka lokatorska nr 21:
                                                            
                                                            
                                                                kom. nr 21:
                                                            
                                                                (w cenie)
                                                        
                                                 | ||||||
| Klepacka budynek 1 m. 24 | 51,46 m2 | 
396 200 PLN | ||||
| 
                                            Ładowanie planów...
                                         
                                            Ładowanie obrazu...
                                         Cena/m² 
                                                        7 699 PLN
                                                                                                 Rodzaj 
                                                Mieszkanie
                                             Status 
                                                Dostępne
                                             Odbiór do 
                                                    31.08.2026
                                                 
                                                    
                                                        Najniższa cena z 30 dni przed obniżką:
                                                    
                                                 
                                                    
                                                        416 800 PLN
                                                    
                                                 
                                                    Pomieszczenia przynależne
                                                 
                                                        
                                                            
                                                                Komórka lokatorska nr 24:
                                                            
                                                            
                                                                kom. nr 24:
                                                            
                                                                (w cenie)
                                                        
                                                 | ||||||
| Klepacka budynek 1 m. 25 | 53,08 m2 | 
403 400 PLN | ||||
| 
                                            Ładowanie planów...
                                         
                                            Ładowanie obrazu...
                                         Cena/m² 
                                                        7 600 PLN
                                                                                                 Rodzaj 
                                                Mieszkanie
                                             Status 
                                                Dostępne
                                             Odbiór do 
                                                    31.08.2026
                                                 
                                                    
                                                        Najniższa cena z 30 dni przed obniżką:
                                                    
                                                 
                                                    
                                                        411 400 PLN
                                                    
                                                 
                                                    Pomieszczenia przynależne
                                                 
                                                        
                                                            
                                                                Komórka lokatorska nr 25:
                                                            
                                                            
                                                                kom. nr 25:
                                                            
                                                                (w cenie)
                                                        
                                                 | ||||||
| Klepacka budynek 1 m. 27 | 51,36 m2 | 
390 300 PLN | ||||
| 
                                            Ładowanie planów...
                                         
                                            Ładowanie obrazu...
                                         Cena/m² 
                                                        7 599 PLN
                                                                                                 Rodzaj 
                                                Mieszkanie
                                             Status 
                                                Dostępne
                                             Odbiór do 
                                                    31.08.2026
                                                 
                                                    
                                                        Najniższa cena z 30 dni przed obniżką:
                                                    
                                                 
                                                    
                                                        413 400 PLN
                                                    
                                                 
                                                    Pomieszczenia przynależne
                                                 
                                                        
                                                            
                                                                Komórka lokatorska nr 27:
                                                            
                                                            
                                                                kom. nr 27:
                                                            
                                                                (w cenie)
                                                        
                                                 | ||||||
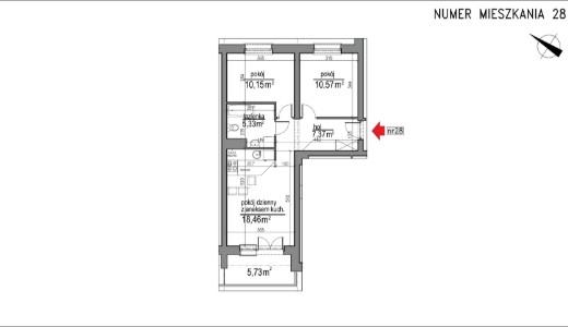
| Klepacka budynek 1 m. 28 | 52,07 m2 | 
411 400 PLN | ||||
| 
                                            Ładowanie planów...
                                         
                                            Ładowanie obrazu...
                                         Cena/m² 
                                                        7 901 PLN
                                                                                                 Rodzaj 
                                                Mieszkanie
                                             Status 
                                                Dostępne
                                             Odbiór do 
                                                    31.08.2026
                                                 
                                                    
                                                        Najniższa cena z 30 dni przed obniżką:
                                                    
                                                 
                                                    
                                                        427 000 PLN
                                                    
                                                 
                                                    Pomieszczenia przynależne
                                                 
                                                        
                                                            
                                                                Komórka lokatorska nr 28:
                                                            
                                                            
                                                                kom. nr 28:
                                                            
                                                                (w cenie)
                                                        
                                                 | ||||||
| Klepacka budynek 1 m. 31 | 52,07 m2 | 
411 400 PLN | ||||
| 
                                            Ładowanie planów...
                                         
                                            Ładowanie obrazu...
                                         Cena/m² 
                                                        7 901 PLN
                                                                                                 Rodzaj 
                                                Mieszkanie
                                             Status 
                                                Dostępne
                                             Odbiór do 
                                                    31.08.2026
                                                 
                                                    
                                                        Najniższa cena z 30 dni przed obniżką:
                                                    
                                                 
                                                    
                                                        427 000 PLN
                                                    
                                                 
                                                    Pomieszczenia przynależne
                                                 
                                                        
                                                            
                                                                Komórka lokatorska nr 31:
                                                            
                                                            
                                                                kom. nr 31:
                                                            
                                                                (w cenie)
                                                        
                                                 | ||||||
| Klepacka budynek 1 m. 32 | 51,97 m2 | 
400 200 PLN | ||||
| 
                                            Ładowanie planów...
                                         
                                            Ładowanie obrazu...
                                         Cena/m² 
                                                        7 701 PLN
                                                                                                 Rodzaj 
                                                Mieszkanie
                                             Status 
                                                Dostępne
                                             Odbiór do 
                                                    31.08.2026
                                                 
                                                    
                                                        Najniższa cena z 30 dni przed obniżką:
                                                    
                                                 
                                                    
                                                        421 000 PLN
                                                    
                                                 
                                                    Pomieszczenia przynależne
                                                 
                                                        
                                                            
                                                                Komórka lokatorska nr 32:
                                                            
                                                            
                                                                kom. nr 32:
                                                            
                                                                (w cenie)
                                                        
                                                 | ||||||
| Klepacka budynek 1 m. 35 | 51,97 m2 | 
400 200 PLN | ||||
| 
                                            Ładowanie planów...
                                         
                                            Ładowanie obrazu...
                                         Cena/m² 
                                                        7 701 PLN
                                                                                                 Rodzaj 
                                                Mieszkanie
                                             Status 
                                                Dostępne
                                             Odbiór do 
                                                    31.08.2026
                                                 
                                                    
                                                        Najniższa cena z 30 dni przed obniżką:
                                                    
                                                 
                                                    
                                                        421 000 PLN
                                                    
                                                 
                                                    Pomieszczenia przynależne
                                                 
                                                        
                                                            
                                                                Komórka lokatorska nr 35:
                                                            
                                                            
                                                                kom. nr 35:
                                                            
                                                                (w cenie)
                                                        
                                                 | ||||||
| Klepacka budynek 1 m. 36 | 51,88 m2 | 
394 300 PLN | ||||
| 
                                            Ładowanie planów...
                                         
                                            Ładowanie obrazu...
                                         Cena/m² 
                                                        7 600 PLN
                                                                                                 Rodzaj 
                                                Mieszkanie
                                             Status 
                                                Dostępne
                                             Odbiór do 
                                                    31.08.2026
                                                 
                                                    
                                                        Najniższa cena z 30 dni przed obniżką:
                                                    
                                                 
                                                    
                                                        409 900 PLN
                                                    
                                                 
                                                    Pomieszczenia przynależne
                                                 
                                                        
                                                            
                                                                Komórka lokatorska nr 36:
                                                            
                                                            
                                                                kom. nr 36:
                                                            
                                                                (w cenie)
                                                        
                                                 | ||||||
| Klepacka budynek 1 m. 39 | 51,88 m2 | 
394 300 PLN | ||||
| 
                                            Ładowanie planów...
                                         
                                            Ładowanie obrazu...
                                         Cena/m² 
                                                        7 600 PLN
                                                                                                 Rodzaj 
                                                Mieszkanie
                                             Status 
                                                Dostępne
                                             Odbiór do 
                                                    31.08.2026
                                                 
                                                    
                                                        Najniższa cena z 30 dni przed obniżką:
                                                    
                                                 
                                                    
                                                        409 900 PLN
                                                    
                                                 
                                                    Pomieszczenia przynależne
                                                 
                                                        
                                                            
                                                                Komórka lokatorska nr 39:
                                                            
                                                            
                                                                kom. nr 39:
                                                            
                                                                (w cenie)
                                                        
                                                 | ||||||
| Klepacka budynek 1 m. 48 | 54,42 m2 | 
413 600 PLN | ||||
| 
                                            Ładowanie planów...
                                         
                                            Ładowanie obrazu...
                                         Cena/m² 
                                                        7 600 PLN
                                                                                                 Rodzaj 
                                                Mieszkanie
                                             Status 
                                                Dostępne
                                             Odbiór do 
                                                    31.08.2026
                                                 
                                                    
                                                        Najniższa cena z 30 dni przed obniżką:
                                                    
                                                 
                                                    
                                                        429 900 PLN
                                                    
                                                 
                                                    Pomieszczenia przynależne
                                                 
                                                        
                                                            
                                                                Komórka lokatorska nr 48:
                                                            
                                                            
                                                                kom. nr 48:
                                                            
                                                                (w cenie)
                                                        
                                                 | ||||||
| Klepacka budynek 1 m. 51 | 51,78 m2 | 
397 100 PLN | ||||
| 
                                            Ładowanie planów...
                                         
                                            Ładowanie obrazu...
                                         Cena/m² 
                                                        7 669 PLN
                                                                                                 Rodzaj 
                                                Mieszkanie
                                             Status 
                                                Dostępne
                                             Odbiór do 
                                                    31.08.2026
                                                 
                                                    
                                                        Najniższa cena z 30 dni przed obniżką:
                                                    
                                                 
                                                    
                                                        419 400 PLN
                                                    
                                                 
                                                    Pomieszczenia przynależne
                                                 
                                                        
                                                            
                                                                Komórka lokatorska nr 51:
                                                            
                                                            
                                                                kom. nr 51:
                                                            
                                                                (w cenie)
                                                        
                                                 | ||||||
| Klepacka budynek 2 m. 5 | 51,97 m2 | 
436 500 PLN                                 | ||||
| 
                                            Ładowanie planów...
                                         
                                            Ładowanie obrazu...
                                         Cena/m² 
                                                        8 399 PLN
                                                                                                 Rodzaj 
                                                Mieszkanie
                                             Status 
                                                Zarezerwowane
                                             Odbiór do 
                                                    31.08.2026
                                                 
                                                    Pomieszczenia przynależne
                                                 
                                                        
                                                            
                                                                Komórka lokatorska nr 5:
                                                            
                                                            
                                                                kom. nr 5:
                                                            
                                                                (w cenie)
                                                        
                                                 | ||||||
| Klepacka budynek 2 m. 8 | 51,97 m2 | 
436 500 PLN                                 | ||||
| 
                                            Ładowanie planów...
                                         
                                            Ładowanie obrazu...
                                         Cena/m² 
                                                        8 399 PLN
                                                                                                 Rodzaj 
                                                Mieszkanie
                                             Status 
                                                Dostępne
                                             Odbiór do 
                                                    31.08.2026
                                                 
                                                    Pomieszczenia przynależne
                                                 
                                                        
                                                            
                                                                Komórka lokatorska nr 8:
                                                            
                                                            
                                                                kom. nr 8:
                                                            
                                                                (w cenie)
                                                        
                                                 | ||||||
| Klepacka budynek 2 m. 12 | 51,88 m2 | 
430 600 PLN                                 | ||||
| 
                                            Ładowanie planów...
                                         
                                            Ładowanie obrazu...
                                         Cena/m² 
                                                        8 300 PLN
                                                                                                 Rodzaj 
                                                Mieszkanie
                                             Status 
                                                Dostępne
                                             Odbiór do 
                                                    31.08.2026
                                                 
                                                    Pomieszczenia przynależne
                                                 
                                                        
                                                            
                                                                Komórka lokatorska nr 12:
                                                            
                                                            
                                                                kom. nr 12:
                                                            
                                                                (w cenie)
                                                        
                                                 | ||||||
| Klepacka budynek 2 m. 16 | 51,88 m2 | 
420 200 PLN                                 | ||||
| 
                                            Ładowanie planów...
                                         
                                            Ładowanie obrazu...
                                         Cena/m² 
                                                        8 099 PLN
                                                                                                 Rodzaj 
                                                Mieszkanie
                                             Status 
                                                Dostępne
                                             Odbiór do 
                                                    31.08.2026
                                                 
                                                    Pomieszczenia przynależne
                                                 
                                                        
                                                            
                                                                Komórka lokatorska nr 16:
                                                            
                                                            
                                                                kom. nr 16:
                                                            
                                                                (w cenie)
                                                        
                                                 | ||||||
| Klepacka budynek 2 m. 36 | 50,77 m2 | 
426 500 PLN                                 | ||||
| 
                                            Ładowanie planów...
                                         
                                            Ładowanie obrazu...
                                         Cena/m² 
                                                        8 401 PLN
                                                                                                 Rodzaj 
                                                Mieszkanie
                                             Status 
                                                Dostępne
                                             Odbiór do 
                                                    31.08.2026
                                                 
                                                    Pomieszczenia przynależne
                                                 
                                                        
                                                            
                                                                Komórka lokatorska nr 36:
                                                            
                                                            
                                                                kom. nr 36:
                                                            
                                                                (w cenie)
                                                        
                                                 | ||||||
| Klepacka budynek 2 m. 39 | 50,68 m2 | 
420 600 PLN                                 | ||||
| 
                                            Ładowanie planów...
                                         
                                            Ładowanie obrazu...
                                         Cena/m² 
                                                        8 299 PLN
                                                                                                 Rodzaj 
                                                Mieszkanie
                                             Status 
                                                Dostępne
                                             Odbiór do 
                                                    31.08.2026
                                                 
                                                    Pomieszczenia przynależne
                                                 
                                                        
                                                            
                                                                Komórka lokatorska nr 39:
                                                            
                                                            
                                                                kom. nr 39:
                                                            
                                                                (w cenie)
                                                        
                                                 | ||||||
| Klepacka budynek 2 m. 42 | 50,68 m2 | 
410 500 PLN                                 | ||||
| 
                                            Ładowanie planów...
                                         
                                            Ładowanie obrazu...
                                         Cena/m² 
                                                        8 100 PLN
                                                                                                 Rodzaj 
                                                Mieszkanie
                                             Status 
                                                Dostępne
                                             Odbiór do 
                                                    31.08.2026
                                                 
                                                    Pomieszczenia przynależne
                                                 
                                                        
                                                            
                                                                Komórka lokatorska nr 42:
                                                            
                                                            
                                                                kom. nr 42:
                                                            
                                                                (w cenie)
                                                        
                                                 | ||||||
