phone
Sprzedaż mieszkań 85 74 15 087  |  mieszkania@kombinatbud.pl
◂ Strona Główna / Inwestycje / Apartamenty Śródmieście / Bohaterów Getta 14 m. 62

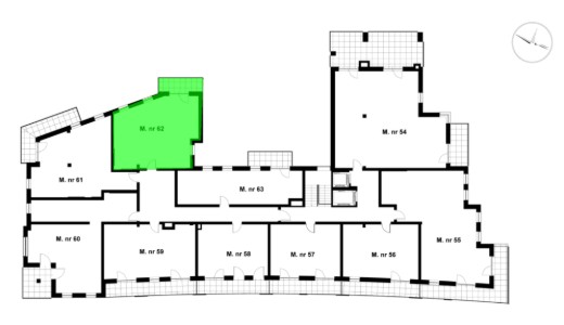
Bohaterów Getta 14 m. 62

680 300 PLN

Historia cen

11 499 PLN/m²

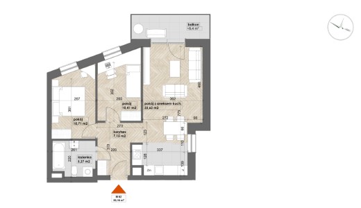
Pomieszczenia przynależne:

Komórka lokatorska nr 26: (w cenie)
Metraż 59,16 m²
Liczba pokoi w mieszkaniu: 3
Piętro Piętro VI
Komórka lokatorska w cenie mieszkania

O inwestycji

Apartamenty Śródmieście przy ulicy Bohaterów Getta 14 to nowoczesny, sześciopiętrowy budynek w wyjątkowej lokalizacji – zaledwie krok od ścisłego centrum Białegostoku. Bliskość Galerii Jurowieckiej, basenu przy ul. Włókienniczej, licznych restauracji, kawiarni, siłowni, parków, skwerów i instytucji kultury sprawia, że wszystko, co najlepsze w mieście, jest tu na wyciągnięcie ręki.


Projekt harmonijnie wpisuje się w charakter okolicy, a jednocześnie wyróżnia się dzięki nowoczesnym akcentom – elewacji wentylowanej z płyt HPL imitujących drewno oraz ozdobnym elementom lameli na balkonach. Kameralny charakter inwestycji podkreśla niewielka liczba lokali – jedynie 63 mieszkania – a komfort mieszkańców zapewniają cichobieżne windy oraz podziemny parking.

Pokaż inwestycje
Apartamenty Śródmieście
  • Prestiżowy adres – ul. Bohaterów Getta 14, na rogu z ul. Czystą,
  • Tuż za rogiem ścisłe centrum – tylko 2 km do Ratusza i Pałacu Branickich,
  • Komfort życia w sercu miasta – pełna infrastruktura i świetna komunikacja.
lokal dostępny
lokal zarezerwowany, prosimy o kontakt z działem sprzedaży

Inne mieszkania

Adres
Piętro
Pokoje
Pow Powierzchnia
Cena brutto
Status
Bohaterów Getta 14 m. 9 Piętro I 3 60,91 m2
670 000 PLN
Historia cen
Dostępne
Ładowanie planów...
Ładowanie obrazu...
Cena/m²
11 000 PLN
Rodzaj
Mieszkanie
Status
Dostępne
Odbiór do
28.02.2027
Pomieszczenia przynależne
Komórka lokatorska nr 4: kom. nr 4: (w cenie)
Bohaterów Getta 14 m. 10 Piętro I 3 59,16 m2
680 300 PLN
Historia cen
Dostępne
Ładowanie planów...
Ładowanie obrazu...
Cena/m²
11 499 PLN
Rodzaj
Mieszkanie
Status
Dostępne
Odbiór do
28.02.2027
Pomieszczenia przynależne
Komórka lokatorska nr 21: kom. nr 21: (w cenie)
Bohaterów Getta 14 m. 19 Piętro II 3 60,91 m2
670 000 PLN
Historia cen
Dostępne
Ładowanie planów...
Ładowanie obrazu...
Cena/m²
11 000 PLN
Rodzaj
Mieszkanie
Status
Dostępne
Odbiór do
28.02.2027
Pomieszczenia przynależne
Komórka lokatorska nr 20: kom. nr 20: (w cenie)
Bohaterów Getta 14 m. 20 Piętro II 3 59,16 m2
680 300 PLN
Historia cen
Dostępne
Ładowanie planów...
Ładowanie obrazu...
Cena/m²
11 499 PLN
Rodzaj
Mieszkanie
Status
Dostępne
Odbiór do
28.02.2027
Pomieszczenia przynależne
Komórka lokatorska nr 22: kom. nr 22: (w cenie)
Bohaterów Getta 14 m. 30 Piętro III 3 60,91 m2
670 000 PLN
Historia cen
Zarezerwowane
Ładowanie planów...
Ładowanie obrazu...
Cena/m²
11 000 PLN
Rodzaj
Mieszkanie
Status
Zarezerwowane
Odbiór do
28.02.2027
Bohaterów Getta 14 m. 31 Piętro III 3 59,16 m2
680 300 PLN
Historia cen
Dostępne
Ładowanie planów...
Ładowanie obrazu...
Cena/m²
11 499 PLN
Rodzaj
Mieszkanie
Status
Dostępne
Odbiór do
28.02.2027
Pomieszczenia przynależne
Komórka lokatorska nr 23: kom. nr 23: (w cenie)
Bohaterów Getta 14 m. 41 Piętro IV 3 60,91 m2
670 000 PLN
Historia cen
Zarezerwowane
Ładowanie planów...
Ładowanie obrazu...
Cena/m²
11 000 PLN
Rodzaj
Mieszkanie
Status
Zarezerwowane
Odbiór do
28.02.2027
Bohaterów Getta 14 m. 42 Piętro IV 3 59,16 m2
680 300 PLN
Historia cen
Dostępne
Ładowanie planów...
Ładowanie obrazu...
Cena/m²
11 499 PLN
Rodzaj
Mieszkanie
Status
Dostępne
Odbiór do
28.02.2027
Pomieszczenia przynależne
Komórka lokatorska nr 24: kom. nr 24: (w cenie)
Bohaterów Getta 14 m. 51 Piętro V 3 60,91 m2
670 000 PLN
Historia cen
Zarezerwowane
Ładowanie planów...
Ładowanie obrazu...
Cena/m²
11 000 PLN
Rodzaj
Mieszkanie
Status
Zarezerwowane
Odbiór do
28.02.2027
Bohaterów Getta 14 m. 52 Piętro V 3 59,16 m2
680 300 PLN
Historia cen
Dostępne
Ładowanie planów...
Ładowanie obrazu...
Cena/m²
11 499 PLN
Rodzaj
Mieszkanie
Status
Dostępne
Odbiór do
28.02.2027
Pomieszczenia przynależne
Komórka lokatorska nr 25: kom. nr 25: (w cenie)

Zadzwoń 85 741 50 87 lub uzupełnij formularz, a skontaktujemy się z Tobą

Wypełnienie formularza oznacza, że podane w nim dane osobowe będą przetwarzane w celu nawiązania kontaktu i udzielenia odpowiedzi na zadane pytanie. Zasady przetwarzania danych i informacje o administratorze znajdziesz w polityce prywatności.

Wysyłam...