Apartamenty Śródmieście przy ulicy Bohaterów Getta 14 to nowoczesny, sześciopiętrowy budynek w wyjątkowej lokalizacji – zaledwie krok od ścisłego centrum Białegostoku. Bliskość Galerii Jurowieckiej, basenu przy ul. Włókienniczej, licznych restauracji, kawiarni, siłowni, parków, skwerów i instytucji kultury sprawia, że wszystko, co najlepsze w mieście, jest tu na wyciągnięcie ręki.
Projekt harmonijnie wpisuje się w charakter okolicy, a jednocześnie wyróżnia się dzięki nowoczesnym akcentom – elewacji wentylowanej z płyt HPL imitujących drewno oraz ozdobnym elementom lameli na balkonach. Kameralny charakter inwestycji podkreśla niewielka liczba lokali – jedynie 63 mieszkania – a komfort mieszkańców zapewniają cichobieżne windy oraz podziemny parking.
Pokaż inwestycje 
                    | 
                            Adres
                         | 
                            Pow
                            Powierzchnia
                         | 
                            Cena brutto
                         | ||||
|---|---|---|---|---|---|---|
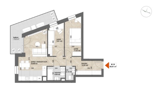
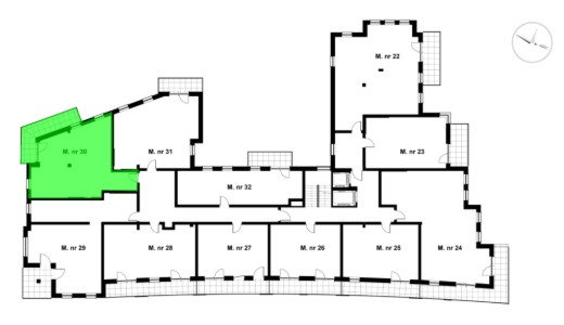
| Bohaterów Getta 14 m. 9 | 60,91 m2 | 
670 000 PLN                                 | ||||
| 
                                            Ładowanie planów...
                                         
                                            Ładowanie obrazu...
                                         Cena/m² 
                                                        11 000 PLN
                                                                                                 Rodzaj 
                                                Mieszkanie
                                             Status 
                                                Dostępne
                                             Odbiór do 
                                                    28.02.2027
                                                 
                                                    Pomieszczenia przynależne
                                                 
                                                        
                                                            
                                                                Komórka lokatorska nr 4:
                                                            
                                                            
                                                                kom. nr 4:
                                                            
                                                                (w cenie)
                                                        
                                                 | ||||||
| Bohaterów Getta 14 m. 10 | 59,16 m2 | 
680 300 PLN                                 | ||||
| 
                                            Ładowanie planów...
                                         
                                            Ładowanie obrazu...
                                         Cena/m² 
                                                        11 499 PLN
                                                                                                 Rodzaj 
                                                Mieszkanie
                                             Status 
                                                Dostępne
                                             Odbiór do 
                                                    28.02.2027
                                                 
                                                    Pomieszczenia przynależne
                                                 
                                                        
                                                            
                                                                Komórka lokatorska nr 21:
                                                            
                                                            
                                                                kom. nr 21:
                                                            
                                                                (w cenie)
                                                        
                                                 | ||||||
| Bohaterów Getta 14 m. 19 | 60,91 m2 | 
670 000 PLN                                 | ||||
| 
                                            Ładowanie planów...
                                         
                                            Ładowanie obrazu...
                                         Cena/m² 
                                                        11 000 PLN
                                                                                                 Rodzaj 
                                                Mieszkanie
                                             Status 
                                                Dostępne
                                             Odbiór do 
                                                    28.02.2027
                                                 
                                                    Pomieszczenia przynależne
                                                 
                                                        
                                                            
                                                                Komórka lokatorska nr 20:
                                                            
                                                            
                                                                kom. nr 20:
                                                            
                                                                (w cenie)
                                                        
                                                 | ||||||
| Bohaterów Getta 14 m. 20 | 59,16 m2 | 
680 300 PLN                                 | ||||
| 
                                            Ładowanie planów...
                                         
                                            Ładowanie obrazu...
                                         Cena/m² 
                                                        11 499 PLN
                                                                                                 Rodzaj 
                                                Mieszkanie
                                             Status 
                                                Dostępne
                                             Odbiór do 
                                                    28.02.2027
                                                 
                                                    Pomieszczenia przynależne
                                                 
                                                        
                                                            
                                                                Komórka lokatorska nr 22:
                                                            
                                                            
                                                                kom. nr 22:
                                                            
                                                                (w cenie)
                                                        
                                                 | ||||||
| Bohaterów Getta 14 m. 31 | 59,16 m2 | 
680 300 PLN                                 | ||||
| 
                                            Ładowanie planów...
                                         
                                            Ładowanie obrazu...
                                         Cena/m² 
                                                        11 499 PLN
                                                                                                 Rodzaj 
                                                Mieszkanie
                                             Status 
                                                Dostępne
                                             Odbiór do 
                                                    28.02.2027
                                                 
                                                    Pomieszczenia przynależne
                                                 
                                                        
                                                            
                                                                Komórka lokatorska nr 23:
                                                            
                                                            
                                                                kom. nr 23:
                                                            
                                                                (w cenie)
                                                        
                                                 | ||||||
| Bohaterów Getta 14 m. 41 | 60,91 m2 | 
670 000 PLN                                 | ||||
| 
                                            Ładowanie planów...
                                         
                                            Ładowanie obrazu...
                                         Cena/m² 
                                                        11 000 PLN
                                                                                                 Rodzaj 
                                                Mieszkanie
                                             Status 
                                                Zarezerwowane
                                             Odbiór do 
                                                    28.02.2027
                                                 | ||||||
| Bohaterów Getta 14 m. 42 | 59,16 m2 | 
680 300 PLN                                 | ||||
| 
                                            Ładowanie planów...
                                         
                                            Ładowanie obrazu...
                                         Cena/m² 
                                                        11 499 PLN
                                                                                                 Rodzaj 
                                                Mieszkanie
                                             Status 
                                                Dostępne
                                             Odbiór do 
                                                    28.02.2027
                                                 
                                                    Pomieszczenia przynależne
                                                 
                                                        
                                                            
                                                                Komórka lokatorska nr 24:
                                                            
                                                            
                                                                kom. nr 24:
                                                            
                                                                (w cenie)
                                                        
                                                 | ||||||
| Bohaterów Getta 14 m. 51 | 60,91 m2 | 
670 000 PLN                                 | ||||
| 
                                            Ładowanie planów...
                                         
                                            Ładowanie obrazu...
                                         Cena/m² 
                                                        11 000 PLN
                                                                                                 Rodzaj 
                                                Mieszkanie
                                             Status 
                                                Zarezerwowane
                                             Odbiór do 
                                                    28.02.2027
                                                 | ||||||
| Bohaterów Getta 14 m. 52 | 59,16 m2 | 
680 300 PLN                                 | ||||
| 
                                            Ładowanie planów...
                                         
                                            Ładowanie obrazu...
                                         Cena/m² 
                                                        11 499 PLN
                                                                                                 Rodzaj 
                                                Mieszkanie
                                             Status 
                                                Dostępne
                                             Odbiór do 
                                                    28.02.2027
                                                 
                                                    Pomieszczenia przynależne
                                                 
                                                        
                                                            
                                                                Komórka lokatorska nr 25:
                                                            
                                                            
                                                                kom. nr 25:
                                                            
                                                                (w cenie)
                                                        
                                                 | ||||||
| Bohaterów Getta 14 m. 62 | 59,16 m2 | 
680 300 PLN                                 | ||||
| 
                                            Ładowanie planów...
                                         
                                            Ładowanie obrazu...
                                         Cena/m² 
                                                        11 499 PLN
                                                                                                 Rodzaj 
                                                Mieszkanie
                                             Status 
                                                Dostępne
                                             Odbiór do 
                                                    28.02.2027
                                                 
                                                    Pomieszczenia przynależne
                                                 
                                                        
                                                            
                                                                Komórka lokatorska nr 26:
                                                            
                                                            
                                                                kom. nr 26:
                                                            
                                                                (w cenie)
                                                        
                                                 | ||||||
