Osiedle Rytm położone jest w bezpośrednim sąsiedztwie Lasu Turczyńskiego. Entuzjastom wypoczynku na świeżym powietrzu oferuje dostęp do licznych tras rowerowych oraz biegowych. Bliskość tras przelotowych i komunikacji miejskiej sprawia, że mieszkańcy mają możliwość szybkiego i sprawnego dojazdu do centrum.
Niewysokie, kameralne budynki Osiedla Rytm wpisują się w charakter dzielnicy, a geometryczne, przestronne balkony, loggie i tarasy otwierają lokale na okoliczną naturę. Zróżnicowana oferta sprawia, że każdy może tu znaleźć swoje nowe mieszkanie.
Pokaż inwestycje 
                    | 
                            Adres
                         | 
                            Pow
                            Powierzchnia
                         | 
                            Cena brutto
                         | ||||
|---|---|---|---|---|---|---|
| Klepacka budynek 2 m. 56 | 71,86 m2 | 
560 500 PLN                                 | ||||
| 
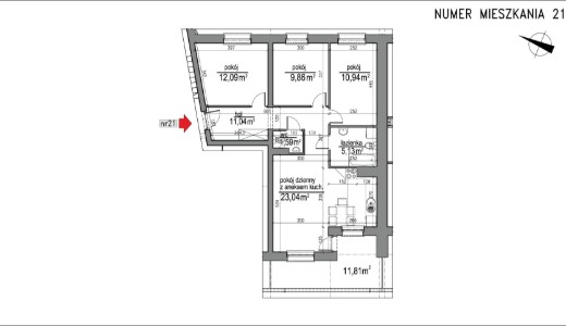
                                            Ładowanie planów...
                                         
                                            Ładowanie obrazu...
                                         Cena/m² 
                                                        7 800 PLN
                                                                                                 Rodzaj 
                                                Mieszkanie
                                             Status 
                                                Dostępne
                                             Odbiór do 
                                                    31.08.2026
                                                 
                                                    Pomieszczenia przynależne
                                                 
                                                        
                                                            
                                                                Komórka lokatorska nr 56:
                                                            
                                                            
                                                                kom. nr 56:
                                                            
                                                                (w cenie)
                                                        
                                                 | ||||||
| Klepacka budynek 2 m. 60 | 71,86 m2 | 
546 100 PLN                                 | ||||
| 
                                            Ładowanie planów...
                                         
                                            Ładowanie obrazu...
                                         Cena/m² 
                                                        7 600 PLN
                                                                                                 Rodzaj 
                                                Mieszkanie
                                             Status 
                                                Dostępne
                                             Odbiór do 
                                                    31.08.2026
                                                 
                                                    Pomieszczenia przynależne
                                                 
                                                        
                                                            
                                                                Komórka lokatorska nr 60:
                                                            
                                                            
                                                                kom. nr 60:
                                                            
                                                                (w cenie)
                                                        
                                                 | ||||||
| Klepacka budynek 3 m. 13 | 73,99 m2 | 
591 900 PLN                                 | ||||
| 
                                            Ładowanie planów...
                                         
                                            Ładowanie obrazu...
                                         Cena/m² 
                                                        8 000 PLN
                                                                                                 Rodzaj 
                                                Mieszkanie
                                             Status 
                                                Dostępne
                                             Odbiór do 
                                                    30.11.2026
                                                 
                                                    Pomieszczenia przynależne
                                                 
                                                        
                                                            
                                                                Komórka lokatorska nr 13:
                                                            
                                                            
                                                                kom. nr 13:
                                                            
                                                                (w cenie)
                                                        
                                                 | ||||||
| Klepacka budynek 3 m. 17 | 73,83 m2 | 
583 300 PLN                                 | ||||
| 
                                            Ładowanie planów...
                                         
                                            Ładowanie obrazu...
                                         Cena/m² 
                                                        7 901 PLN
                                                                                                 Rodzaj 
                                                Mieszkanie
                                             Status 
                                                Dostępne
                                             Odbiór do 
                                                    30.11.2026
                                                 
                                                    Pomieszczenia przynależne
                                                 
                                                        
                                                            
                                                                Komórka lokatorska nr 17:
                                                            
                                                            
                                                                kom. nr 17:
                                                            
                                                                (w cenie)
                                                        
                                                 | ||||||
| Klepacka budynek 3 m. 25 | 73,69 m2 | 
560 000 PLN                                 | ||||
| 
                                            Ładowanie planów...
                                         
                                            Ładowanie obrazu...
                                         Cena/m² 
                                                        7 599 PLN
                                                                                                 Rodzaj 
                                                Mieszkanie
                                             Status 
                                                Dostępne
                                             Odbiór do 
                                                    30.11.2026
                                                 
                                                    Pomieszczenia przynależne
                                                 
                                                        
                                                            
                                                                Komórka lokatorska nr 25:
                                                            
                                                            
                                                                kom. nr 25:
                                                            
                                                                (w cenie)
                                                        
                                                 | ||||||
