phone
Sprzedaż mieszkań 85 74 15 087  |  mieszkania@kombinatbud.pl
◂ Strona Główna / Inwestycje / Osiedle Rytm / Klepacka budynek 2 m. 7

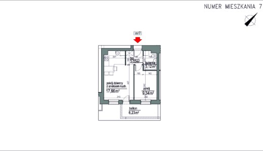
Klepacka budynek 2 m. 7

288 300 PLN

Historia cen

8 699 PLN/m²

Pomieszczenia przynależne:

Komórka lokatorska nr 7: (w cenie)
Białystok, Klepacka budynek 2

Odbiór mieszkania: sierpień 2026

Metraż 33,14 m²
Liczba pokoi w mieszkaniu: 2
Piętro Piętro I
Komórka lokatorska w cenie mieszkania

O inwestycji

Osiedle Rytm położone jest w bezpośrednim sąsiedztwie Lasu Turczyńskiego. Entuzjastom wypoczynku na świeżym powietrzu oferuje dostęp do licznych tras rowerowych oraz biegowych. Bliskość tras przelotowych i komunikacji miejskiej sprawia, że mieszkańcy mają możliwość szybkiego i sprawnego dojazdu do centrum.


Niewysokie, kameralne budynki Osiedla Rytm wpisują się w charakter dzielnicy, a geometryczne, przestronne balkony, loggie i tarasy otwierają lokale na okoliczną naturę. Zróżnicowana oferta sprawia, że każdy może tu znaleźć swoje nowe mieszkanie.

Pokaż inwestycje
Osiedle Rytm

Lokalizacja

  • osiedle Starosielce, ulica Klepacka w Białymstoku,
  • w sąsiedztwie Lasu Turczyńskiego,
  • 5,6 km od Rynku Kościuszki w centrum miasta.
lokal dostępny
lokal zarezerwowany, prosimy o kontakt z działem sprzedaży

Inne mieszkania

Adres
Piętro
Pokoje
Pow Powierzchnia
Cena brutto
Status
Klepacka budynek 3 m. 1 Parter 2 37,89 m2
333 400 PLN
Historia cen
Zarezerwowane
Ładowanie planów...
Ładowanie obrazu...
Cena/m²
8 799 PLN
Rodzaj
Mieszkanie
Status
Zarezerwowane
Odbiór do
30.11.2026
Pomieszczenia przynależne
Komórka lokatorska nr 1: kom. nr 1: (w cenie)

Zadzwoń 85 741 50 87 lub uzupełnij formularz, a skontaktujemy się z Tobą

Wypełnienie formularza oznacza, że podane w nim dane osobowe będą przetwarzane w celu nawiązania kontaktu i udzielenia odpowiedzi na zadane pytanie. Zasady przetwarzania danych i informacje o administratorze znajdziesz w polityce prywatności.

Wysyłam...