phone
Sprzedaż mieszkań 85 74 15 087  |  mieszkania@kombinatbud.pl
◂ Strona Główna / Inwestycje / Nowa Wygoda / 42 Pułku Piechoty 74E m. 51

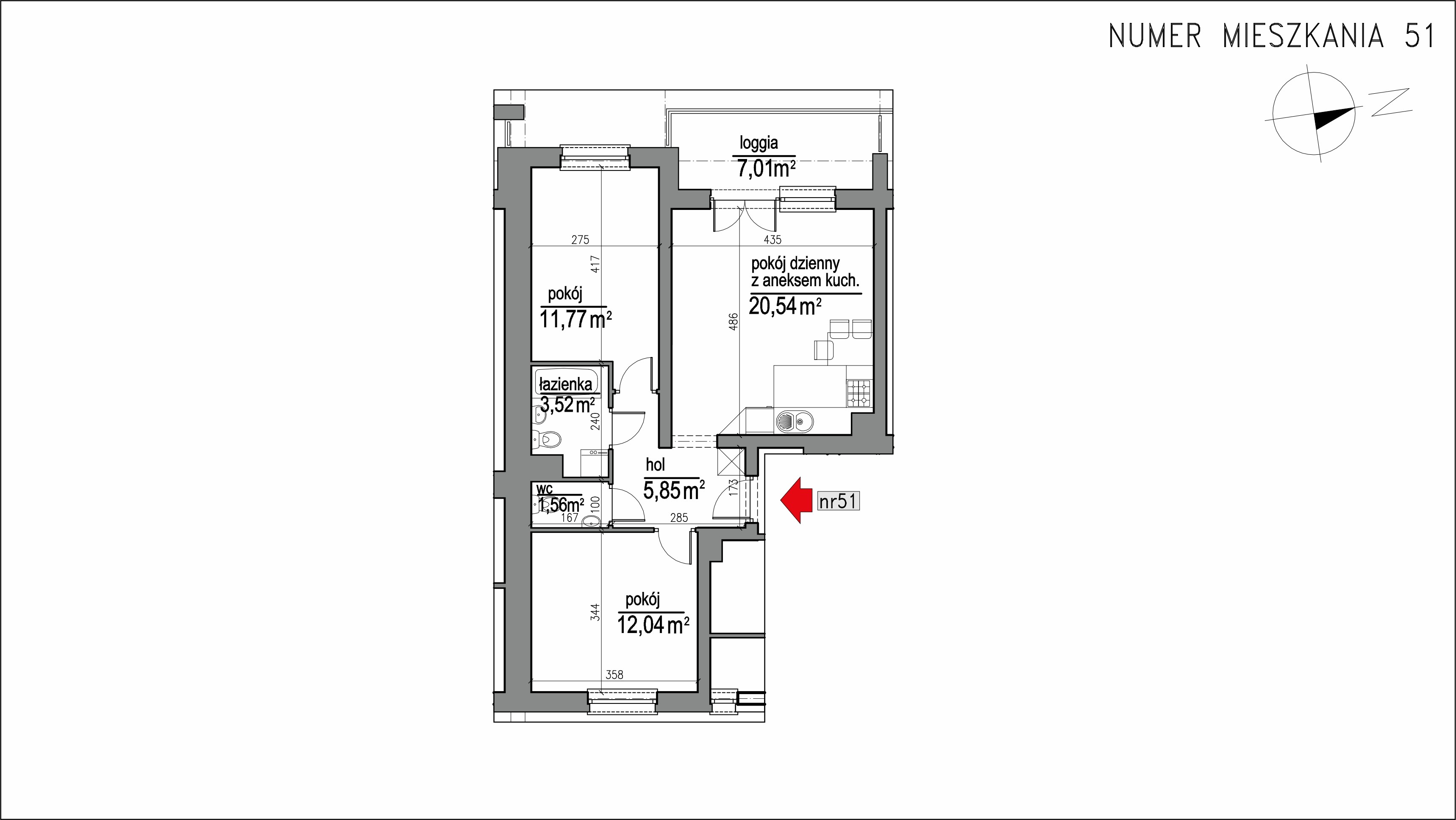
42 Pułku Piechoty 74E m. 51

472 600 PLN

Historia cen

8 549 PLN/m²

Pomieszczenia przynależne:

Komórka lokatorska nr 51: (w cenie)
Białystok, 42 Pułku Piechoty 74E

Odbiór mieszkania: lipiec 2025

Metraż 55,28 m²
Liczba pokoi w mieszkaniu: 3
Piętro Piętro I
Komórka lokatorska w cenie mieszkania

O inwestycji

LOKALIZACJA

  • Atrakcyjna dzielnica w atmosferze spokoju i ciszy,
  • Bliskość centrum (3,6 km) oraz nowoczesnej sieci dróg,
  • Liczne ścieżki rowerowe, tereny zielone i rekreacyjne,
  • W pobliżu sklepy, przedszkola, gabinety lekarskie i apteka.

OSIEDLE

  • Osiedle położone w otulinie lasów i ogródków działkowych,
  • Niewysoka, kameralna zabudowa zaprojektowana z poszanowaniem krajobrazu i charakteru dzielnicy,
  • Oryginalna forma architektoniczna - geometryczne, przestronne balkony, loggie i tarasy otwarte na tereny zielone.

MIESZKANIA

  • Szeroka oferta mieszkań o zróżnicowanych metrażach,
  • Przestronne i nasłonecznione mieszkania z malowniczymi widokami,
  • Zielone tarasy do wybranych mieszkań,
  • Do każdego mieszkania komórka lokatorska lub piwnica gratis.
Pokaż inwestycje
Nowa Wygoda

Zadzwoń 85 741 50 87 lub uzupełnij formularz, a skontaktujemy się z Tobą

Wypełnienie formularza oznacza, że podane w nim dane osobowe będą przetwarzane w celu nawiązania kontaktu i udzielenia odpowiedzi na zadane pytanie. Zasady przetwarzania danych i informacje o administratorze znajdziesz w polityce prywatności.

Wysyłam...