phone
Sprzedaż mieszkań 85 74 15 087  |  mieszkania@kombinatbud.pl
◂ Strona Główna / Inwestycje / Apartamenty Śródmieście / Bohaterów Getta 14 m. 18

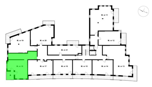
Bohaterów Getta 14 m. 18

776 100 PLN

Historia cen

10 501 PLN/m²

Pomieszczenia przynależne:

Komórka lokatorska nr 7: (w cenie)
Metraż 73,91 m²
Liczba pokoi w mieszkaniu: 4
Piętro Piętro II
Komórka lokatorska w cenie mieszkania

O inwestycji

Apartamenty Śródmieście przy ulicy Bohaterów Getta 14 to nowoczesny, sześciopiętrowy budynek w wyjątkowej lokalizacji – zaledwie krok od ścisłego centrum Białegostoku. Bliskość Galerii Jurowieckiej, basenu przy ul. Włókienniczej, licznych restauracji, kawiarni, siłowni, parków, skwerów i instytucji kultury sprawia, że wszystko, co najlepsze w mieście, jest tu na wyciągnięcie ręki.


Projekt harmonijnie wpisuje się w charakter okolicy, a jednocześnie wyróżnia się dzięki nowoczesnym akcentom – elewacji wentylowanej z płyt HPL imitujących drewno oraz ozdobnym elementom lameli na balkonach. Kameralny charakter inwestycji podkreśla niewielka liczba lokali – jedynie 63 mieszkania – a komfort mieszkańców zapewniają cichobieżne windy oraz podziemny parking.

Pokaż inwestycje
Apartamenty Śródmieście
  • Prestiżowy adres – ul. Bohaterów Getta 14, na rogu z ul. Czystą,
  • Tuż za rogiem ścisłe centrum – tylko 2 km do Ratusza i Pałacu Branickich,
  • Komfort życia w sercu miasta – pełna infrastruktura i świetna komunikacja.
lokal dostępny
lokal zarezerwowany, prosimy o kontakt z działem sprzedaży

Inne mieszkania

Adres
Piętro
Pokoje
Pow Powierzchnia
Cena brutto
Status
Bohaterów Getta 14 m. 8 Piętro I 4 73,91 m2
776 100 PLN
Historia cen
Dostępne
Ładowanie planów...
Ładowanie obrazu...
Cena/m²
10 501 PLN
Rodzaj
Mieszkanie
Status
Dostępne
Odbiór do
28.02.2027
Pomieszczenia przynależne
Komórka lokatorska nr 3: kom. nr 3: (w cenie)
Bohaterów Getta 14 m. 29 Piętro III 4 73,91 m2
776 100 PLN
Historia cen
Dostępne
Ładowanie planów...
Ładowanie obrazu...
Cena/m²
10 501 PLN
Rodzaj
Mieszkanie
Status
Dostępne
Odbiór do
28.02.2027
Pomieszczenia przynależne
Komórka lokatorska nr 10: kom. nr 10: (w cenie)
Bohaterów Getta 14 m. 40 Piętro IV 4 73,91 m2
776 100 PLN
Historia cen
Dostępne
Ładowanie planów...
Ładowanie obrazu...
Cena/m²
10 501 PLN
Rodzaj
Mieszkanie
Status
Dostępne
Odbiór do
28.02.2027
Pomieszczenia przynależne
Komórka lokatorska nr 13: kom. nr 13: (w cenie)
Bohaterów Getta 14 m. 50 Piętro V 4 73,91 m2
776 100 PLN
Historia cen
Dostępne
Ładowanie planów...
Ładowanie obrazu...
Cena/m²
10 501 PLN
Rodzaj
Mieszkanie
Status
Dostępne
Odbiór do
28.02.2027
Pomieszczenia przynależne
Komórka lokatorska nr 16: kom. nr 16: (w cenie)
Bohaterów Getta 14 m. 60 Piętro VI 4 73,91 m2
776 100 PLN
Historia cen
Dostępne
Ładowanie planów...
Ładowanie obrazu...
Cena/m²
10 501 PLN
Rodzaj
Mieszkanie
Status
Dostępne
Odbiór do
28.02.2027
Pomieszczenia przynależne
Komórka lokatorska nr 19: kom. nr 19: (w cenie)

Zadzwoń 85 741 50 87 lub uzupełnij formularz, a skontaktujemy się z Tobą

Wypełnienie formularza oznacza, że podane w nim dane osobowe będą przetwarzane w celu nawiązania kontaktu i udzielenia odpowiedzi na zadane pytanie. Zasady przetwarzania danych i informacje o administratorze znajdziesz w polityce prywatności.

Wysyłam...