phone
Sprzedaż mieszkań 85 74 15 087  |  mieszkania@kombinatbud.pl
◂ Strona Główna / Inwestycje / Apartamenty Śródmieście / Bohaterów Getta 14 m. 17

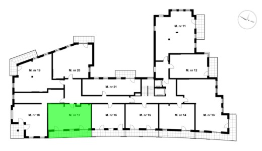
Bohaterów Getta 14 m. 17

568 900 PLN

Historia cen

10 901 PLN/m²

Białystok, Bohaterów Getta 14

Odbiór mieszkania: luty 2027

Metraż 52,19 m²
Liczba pokoi w mieszkaniu: 3
Piętro Piętro II

O inwestycji

Apartamenty Śródmieście przy ulicy Bohaterów Getta 14 to nowoczesny, sześciopiętrowy budynek w wyjątkowej lokalizacji – zaledwie krok od ścisłego centrum Białegostoku. Bliskość Galerii Jurowieckiej, basenu przy ul. Włókienniczej, licznych restauracji, kawiarni, siłowni, parków, skwerów i instytucji kultury sprawia, że wszystko, co najlepsze w mieście, jest tu na wyciągnięcie ręki.


Projekt harmonijnie wpisuje się w charakter okolicy, a jednocześnie wyróżnia się dzięki nowoczesnym akcentom – elewacji wentylowanej z płyt HPL imitujących drewno oraz ozdobnym elementom lameli na balkonach. Kameralny charakter inwestycji podkreśla niewielka liczba lokali – jedynie 63 mieszkania – a komfort mieszkańców zapewniają cichobieżne windy oraz podziemny parking.

Pokaż inwestycje
Apartamenty Śródmieście
  • Prestiżowy adres – ul. Bohaterów Getta 14, na rogu z ul. Czystą,
  • Tuż za rogiem ścisłe centrum – tylko 2 km do Ratusza i Pałacu Branickich,
  • Komfort życia w sercu miasta – pełna infrastruktura i świetna komunikacja.
lokal dostępny
lokal zarezerwowany, prosimy o kontakt z działem sprzedaży

Inne mieszkania

Adres
Piętro
Pokoje
Pow Powierzchnia
Cena brutto
Status
Bohaterów Getta 14 m. 7 Piętro I 3 52,19 m2
568 900 PLN
Historia cen
Dostępne
Ładowanie planów...
Ładowanie obrazu...
Cena/m²
10 901 PLN
Rodzaj
Mieszkanie
Status
Dostępne
Odbiór do
28.02.2027
Bohaterów Getta 14 m. 28 Piętro III 3 52,19 m2
600 200 PLN
Historia cen
Zarezerwowane
Ładowanie planów...
Ładowanie obrazu...
Cena/m²
11 500 PLN
Rodzaj
Mieszkanie
Status
Zarezerwowane
Odbiór do
28.02.2027
Bohaterów Getta 14 m. 39 Piętro IV 3 52,19 m2
600 200 PLN
Historia cen
Zarezerwowane
Ładowanie planów...
Ładowanie obrazu...
Cena/m²
11 500 PLN
Rodzaj
Mieszkanie
Status
Zarezerwowane
Odbiór do
28.02.2027
Bohaterów Getta 14 m. 49 Piętro V 3 52,26 m2
601 000 PLN
Historia cen
Zarezerwowane
Ładowanie planów...
Ładowanie obrazu...
Cena/m²
11 500 PLN
Rodzaj
Mieszkanie
Status
Zarezerwowane
Odbiór do
28.02.2027
Bohaterów Getta 14 m. 59 Piętro VI 3 52,32 m2
601 300 PLN
Historia cen
Zarezerwowane
Ładowanie planów...
Ładowanie obrazu...
Cena/m²
11 493 PLN
Rodzaj
Mieszkanie
Status
Zarezerwowane
Odbiór do
28.02.2027

Zadzwoń 85 741 50 87 lub uzupełnij formularz, a skontaktujemy się z Tobą

Wypełnienie formularza oznacza, że podane w nim dane osobowe będą przetwarzane w celu nawiązania kontaktu i udzielenia odpowiedzi na zadane pytanie. Zasady przetwarzania danych i informacje o administratorze znajdziesz w polityce prywatności.

Wysyłam...